La Provincia ampliará el Complejo Penal 1 de Viedma
También se anunció para enero la apertura de la licitación para la puesta en valor del Centro Municipal de Cultural de la capital provincial.
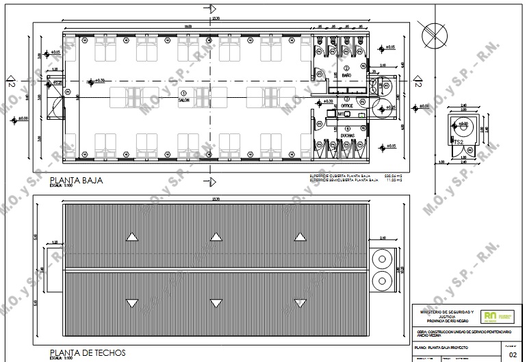
El gobierno de Río Negro anunció la ampliación del Complejo Penal 1 de Viedma con la construcción de un anexo de 240 metros cuadrados, que permitirá un 10% más de internos.
La obra se realizará con fondos propios, cuenta con una inversión de 552,5 millones de pesos, un plazo de ejecución de 240 días y está previsto que el martes 23 de este mes se realice la apertura de sobres.
Se destacó desde la provincia que «es resultado del trabajo conjunto entre los Ministerios de Obras y Servicios Públicos, y de Seguridad y Justicia» y que se busca «garantizar condiciones edilicias adecuadas para el personal y la población carcelaria».
El detalle técnico establece que «consiste en la construcción de una unidad penitenciaria diseñada con una capacidad para albergar inicialmente a 36 internos» y «la edificación presenta una planta rectangular modular, proyectada para permitir una futura adaptación del espacio. Esta modulación facilita la posible división en 12 celdas ventiladas, dispuestas en una configuración de doble crujía».
Además, «el acceso principal incorpora un espacio semicubierto, previsto para una potencial expansión futura con la ampliación del edificio. En la zona posterior de la unidad se localiza el bloque de servicios de apoyo, que incluye un office, cuatro duchas individuales y un baño equipado con cuatro inodoros individuales y dos piletones con un total de seis canillas con agua fría y caliente».
Entre los puntos destacados del llamado a licitación se destaca que «el Contratista deberá emplear para la ejecución de la presente obra, personal que se encuentre en etapa de prueba del cumplimiento de una condena en unidades penitenciarias o alcaldías ubicadas en territorio provincial o hayan sido liberados de las mismas por agotamiento de pena» y para eso «solicitará al Instituto de Asistencia a Presos y Liberados, el registro de las personas que se encuentren en condiciones de acceder a un puesto de trabajo».
En números
- 552,5
- millones de pesos es el presupuesto oficial para la obra que se iniciaría en el primer trimestre del año próximo.
- 350
- es la capacidad actual del complejo que sumará 36 nuevos lugares con la construcción del anexo.

Puesta en valor del Centro Cultural de Viedma
Por otra parte, el lunes 22 de enero se realizará la apertura de sobres para la obra de Ampliación y Refuncionalización del Centro Cultural de Viedma.
Demandará una inversión superior a los 8.300 millones de pesos financiado por el Banco de Desarrollo de América Latina y el Caribe, a través de la Corporación Andina de Fomento (CAF).
El edificio actual, inaugurado en 1970, tiene 2.400 metros cuadrados en dos plantas, cuenta con aulas, oficinas, dependencias y una sala de espectáculos con capacidad para 500 personas y dos camarines y la nueva infraestructura ampliará en un 50% la superficie cubierta, sumará un 20% de capacidad en la sala mayor, y agregará una nueva ala destinada a la administración.
Además de la refuncionalización de los espacios actuales se construirá una sala de conferencias, cinco aulas taller en la planta baja, otras cuatro en la planta alta más una sala de profesores, un salón de usos múltiples, una sala de ensayos y artes escénicas y un laboratorio audiovisual, con sus respectivos equipamientos.
En la sala mayor se cambiarán las butacas, se ampliará la capacidad con la construcción de un palco y se habilitarán cuatro camarines.
Fuera del edificio principal, se construirá un nuevo punto gastronómico y sanitarios públicos, mientras que tendrán un nuevo diseño los espacios exteriores, con sendas peatonales, una plaza cívica, una calle interna de servicio y un cruce peatonal a nivel que conectará con la plazoleta del Fundador y el paseo costero.

El gobierno de Río Negro anunció la ampliación del Complejo Penal 1 de Viedma con la construcción de un anexo de 240 metros cuadrados, que permitirá un 10% más de internos.
Registrate gratis
Disfrutá de nuestros contenidos y entretenimiento
Suscribite por $1500 ¿Ya estás suscripto? Ingresá ahora
Comentarios