Apostar al barrio y la ciudad sin invadir la naturaleza, claves de un gran proyecto en Córdoba
Los barrios privados crecen en las periferias y Córdoba no es una excepción, a costa de los bosques nativos. Entre patios y jacarandás, esta casa pensada para construir en etapas por la arquitecta Sol Blanc a 10 minutos del centro de la capital provincial se ofrece como una alternativa en busca de una ciudad más equilibrada y amigable.

A menos de diez minutos de auto del centro, en el apacible barrio parque San Francisco al suroeste de la ciudad de Córdoba, las casas de una y dos plantas se suceden de cara a los jacarandás que brillan en los frentes y los jardines. Allí jugaba de pequeña Sol Blanc en los 80, cuando todavía las chicas y los chicos disfrutaban de la calle, las puertas abiertas, los muros bajitos, las baldosas de la vereda perfectas para el tejo o el elástico y las mil aventuras de treparse a los árboles y los techos, mientras madres y padres estaban atentos del otro lado de las ventanas y los llamaban para la merienda o la comida.

Aquella niña se recibió de arquitecta en el 2006 en la Universidad Nacional de Córdoba, donde hoy es docente. Y entre otros cambios sociales profundos, lamenta uno en especial: que la ciudad se haya extendido y fragmentado tanto al mismo tiempo, por la proliferación de barrios cerrados que avanzan en las sierras cercanas a costa del desmonte de los bosques nativos. En el caso de Sol Blanc y su marido Juan Ignacio Venditti (de Cinco Saltos, Río Negro) optaron por construir su casa en un lote en el mismo lugar donde ella creció y donde ahora se crían sus dos hijos.
La arquitecta la pensó integrada al espacio público, sin rejas, como las de antes. Junto con Juan, la pensó también en etapas habitables y constructivas, la mejor estrategia de acuerdo con el dinero que estaban en condiciones de invertir, la incertidumbre de si saldría o no el crédito Procrear y el ritmo del crecimiento de la familia.
La idea, claro, se remonta a los recuerdos de la niñez, a las sensaciones que les generaba un lote y un barrio arbolado, a las ganas de vivir entre patios y jacarandás dentro de la ciudad.

Los m2 y el costo estimado
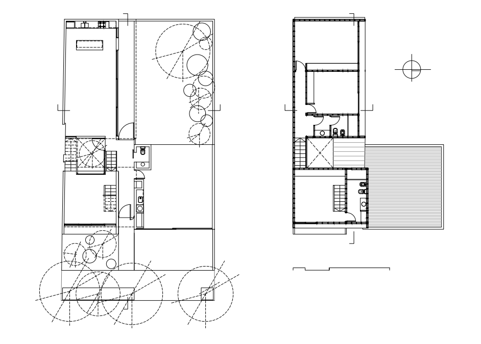
Eran dos habitantes al principio, tres después, cuatro más tarde. Y así como llegaron los hijos creció la casa, de acuerdo con el plan original. Tenía 129 metros cuadrados cuando estuvo lista la primera parte en el 2019. Y sumó otros 117 m2 con la segunda etapa, la que completó la vivienda en el 2023 con un total de 246 m2 en un lote de 12,40 metros por 20,80 metros.

¿Cuánto costó el m2 construido? En el 2019, alrededor de u$s 350. Y en el 2023, una cifra que ronda los u$s 400, valores que hoy treparían al menos al doble. Hay que tener en cuenta que además del ahorro en los honorarios profesionales, la resolución es austera, con los materiales de construcción a la vista sin camuflaje ni revestimientos.
Un lugar en el mundo

En el barrio hay almacenes, comercios, el colegio de los chicos cerca. Y la sede de la Universidad Nacional de Córdoba donde se formó y donde hoy enseña, a menos de 10 minutos de auto. Ese es el lugar donde concibió el proyecto que se ofrece como una opción a los barrios de perímetro cerrado que avanzan sobre los bosque nativos en la periferia de la ciudad.
¿Cuál fue la búsqueda? “Contribuir a la consolidación y construcción de una ciudad más amigable, equilibrada y vital. El desafío estuvo en pensar una vivienda contemporánea alternativa como respuesta a los problemas que atraviesa nuestra ciudad y sus habitantes”, dice la arquitecta Blanc.
¿La resolución? Que la casa estuviera conformada por diferentes espacios con distintas cualidades y niveles de privacidad que acompañan árboles y configuran patios.

Así, un gran zaguán se transforma en articulador y transición entre estos espacios interiores y exteriores. Y alrededor del árbol del patio interno se disponen las escaleras para acceder a los distintos niveles de la vivienda.
“Los modos de construir, la gestión y la materialidad son centrales en este proyecto que enfatiza la idea de casa como proceso. Es una casa abierta, que cambia, crece. Y que se va pensando, modificando y definiendo en el proceso con los involucrados en la construcción y con la familia”, señala la arquitecta.
Estética sin maquillaje

Si la diversidad de etapas y sistemas constructivos respondió a la economía y al crecimiento de la familia y de sus integrantes y la necesidad entonces de espacios compartidos y otros independientes, la estética de la casa es la misma de una obra en construcción, descarnada y sin maquillaje.

“El ‘lujo’ está en el espacio y en las relaciones que esta vivienda facilita o permite, y no en el precio de los materiales o en el uso de elementos con tecnología sofisticada”, dice la arquitecta.
La vivienda se apoya sobre la medianera sur y se abre al norte y al este, al barrio. Así, la iluminación natural y el uso de corrientes de aire, asoleamiento y vegetación se convirtieron en otras claves del proyecto.
Minimizar el consumo de energía para no sobrecargar las infraestructuras de la ciudad fue otro de los ejes, con la idea de que la casa pueda independizarse e incorporar nuevas tecnologías ecosostenibles en el tiempo.


En esa segunda fase, la vivienda sumó una “escalera puente” de un medio tramo como conector, dos habitaciones y un baño con lavadero integrado.
Las mejoras se desarrollaron con sistemas constructivos en seco para reducir los tiempos de obra, no dañar lo ya edificado e interferir lo menos posible con la vida cotidiana, explica la arquitecta Blanc. Un beneficio adicional de esta elección fue disminuir los residuos que habitualmente se generan en los procesos constructivos,
“Hoy en día es clave pensar arquitectura abierta, que se adapte a los cambios del contexto y de la familia y la incorporación de estrategias no solo económicas en nuestro país, sino también ecológicas y sumar al vegetal como un material más de las viviendas”.
Ecosostenible
Si bien la parte de construcción está ya terminada, a futuro el proyecto incluye sumar un sistema de captación y de utilización de agua de lluvia, paneles fotovoltaicos para la generación de energía eléctrica y paneles termosolales para generación de agua caliente y queda abierta a incorporar desarrollos o tecnologías alternativas futuras.


También incorpora espacios destinados a ecoprácticas o ecomodos de habitar que facilitan la agricultura urbana, la regeneración de bosques nativos, el compostaje y la separación de residuos.

La casa está destinada a una familia con modos y códigos contemporáneos. “Por esta razón pretende ser un soporte en la que cada uno pueda tener su espacio, habitar con libertad y compartir en familia y con amigos cuando se desee. Donde cada integrante de la familia pueda crecer, desenvolverse, y también involucrarse, apropiarse, disfrutar y jugar con la casa”, dice la arquitecta Blanc.


Semanas atrás fue invitada a dar una charla por una cátedra de la Facultad de Arquitectura, Planeamiento y Diseño de la Universidad Nacional de Rosario, colegas que habían valorado el proyecto y querían que los estudiantes supieran más sobre el manejo de los diferentes sistemas constructivos, el proceso en etapas y las terminaciones austeras y cálidas. Nada más lindo que contar la experiencia para una profesional que cree en la educación pública tanto como en los espacios compartidos, como en aquel barrio donde creció y luego eligieron con Juan para levantar su casa y criar a sus hijos.
Ficha Técnica
- Nombre del Proyecto: Casa Urrutia
- Oficina de Arquitectura: Sol Blanc
- Año finalización construcción: 2019 y 2023 la ampliación
- Superficie construida: 128.63 m2 primer etapa ( 246.63 m2 casa completa 2023)
- Ubicación: Barrio Parque San Francisco. Ciudad de Córdoba. Argentina.
- Sitio web: www.arqsolblanc.com
- sol.blanc@arqsolblanc.com / @sol.blanc.arquitecta
- Créditos Fotografía: Gonzalo Viramonte año 2019 / @gonzaloviramonte
- Créditos Fotografía: Eleazar Cuadros 2023 / @eleazarcuadros
Mini bío

La arquitecta Sol Blanc se recibió en 2006 en la Universidad Nacional de Córdoba, donde hoy es docente. Ha participado desde entonces en el desarrollo, construcción y administración de más de cien obras, la mayoría de ellas casas. Ha participado en congresos, seminarios y charlas públicas exponiendo los resultados de su trabajo, como así también asistido y coordinado talleres participativos e intercambios en workshops con otras universidades nacionales e internacionales. Ha viajado para conocer otras culturas, modos de habitar y otros escenarios arquitectónicos y urbanos, entre otros países por Chile, Uruguay, Brasil, Colombia, Estados Unidos, México, España, Italia, Alemania, Francia, y Holanda, además de la Argentina.

A menos de diez minutos de auto del centro, en el apacible barrio parque San Francisco al suroeste de la ciudad de Córdoba, las casas de una y dos plantas se suceden de cara a los jacarandás que brillan en los frentes y los jardines. Allí jugaba de pequeña Sol Blanc en los 80, cuando todavía las chicas y los chicos disfrutaban de la calle, las puertas abiertas, los muros bajitos, las baldosas de la vereda perfectas para el tejo o el elástico y las mil aventuras de treparse a los árboles y los techos, mientras madres y padres estaban atentos del otro lado de las ventanas y los llamaban para la merienda o la comida.
Registrate gratis
Disfrutá de nuestros contenidos y entretenimiento
Suscribite por $1500 ¿Ya estás suscripto? Ingresá ahora
Comentarios