Una inspiradora casa de campo: integrada al entorno rural, de bajo costo y la mejor del año
Con la llanura pampeana como escenario, este proyecto en Las Golondrinas (partido de Brandsen, provincia de Buenos Aires) responde al pedido de una pareja: una propuesta simple, económica y en equilibrio con el paisaje. Los materiales elegidos y el valor del m2 de la ganadora del premio a la mejor vivienda unifamiliar de la Bienal Internacional de Arquitectura de Buenos Aires. Los arquitectos Julián Ierace y Sebastián Miranda explican aquí las claves de la obra que integra también el libro Cien Casas Latinoamericanas.

Surgió como una vivienda de fin de semana para una pareja que requería una propuesta simple, de bajo costo, superficie reducida y en equilibrio con su entorno. E}l resultado está a la vista y les gustó tanto que pasan la mayor parte de los días allí. La pensaron y la construyeron los arquitectos Julián Ierace y Sebastián Miranda. No son socios: cada uno tiene su estudio pero suelen compartir proyectos. Ambos docentes de la Universidad Nacional de La Plata, coinciden en el método a la hora de planificar una obra: desarrollo teórico, investigación y soluciones constructivas sustentables. De esa usina de ideas nació la de esta casa emplazada en una zona rural del partido de Brandsen, provincia de Buenos Aires, junto al cauce del arroyo San Luis, en un entorno típico de la llanura pampeana.
Las claves del proyecto
¿Cómo la pensaron los arquitectos? La vivienda se apoya sobre una plataforma de hormigón sostenida por dos grandes vigas al nivel del suelo, que generan voladizos que le permiten suspenderse sobre el terreno y adaptarse a sus características húmedas, Esto también eleva las visuales hacia el horizonte.


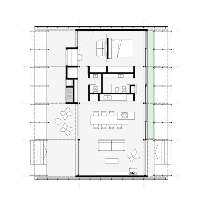
Su planta regular y uniforme (reinterpretación de la casa Farnsworth de Ludwig Mies van der Rohe) aporta flexibilidad de uso y genera una articulación entre el área social y los espacios privados a través de las áreas húmedas.

Sus grandes cerramientos vidriados, que se ocultan en su totalidad, permiten la vinculación y expansión directa, aumentando las áreas sociales.


Para reducir el uso de recursos, se incorporaron aspectos pasivos como galerías, ventilaciones cruzadas, regulación de incidencia solar, adecuada aislación térmica y aprovechamiento de la luz natural.

Además, se incluyeron estrategias activas, como sistemas de acumulación de aguas de lluvia para riego, biodigestor para las aguas servidas y un colector solar para calentar el agua, reduciendo así el uso de recursos naturales.
1.000
- dólares, el costo estimado por m2 durante el acopio de materiales y la construcción entre el 2021 y el 2023.
Tabiques con placas fenólicas de viruta de madera, derivados de productos elaborados con materiales reciclados, aportan el confort propio de las cabañas rurales.

Una envolvente de chapa de zinc genera una barrera sobre los muros laterales y un efecto sombrilla sobre la cubierta mediante el sobretecho: crea una cámara de aire que aísla la vivienda del exterior y reduce así la energía necesaria para acondicionarla y su exposición a la intemperie.




Esta envolvente de zinc se complementa con un sistema de cerramientos pivotantes de chapa microperforada, que regula la incidencia de los rayos solares, permite la vinculación visual con el paisaje y además brinda seguridad cuando la vivienda está deshabitada. La utilización de hormigón visto y madera natural en solados y caminerías exteriores resalta el tratamiento natural de la composición.

La combinación de muros y tabiques fenólicos con la estructura y envolvente metálica, en gran parte permeable, brinda un efecto visual de transparencia y contraste. Estas soluciones constructivas permitieron rapidez de ejecución, posibilidad de acopio en un área de difícil acceso y reducción del costo de mantenimiento a futuro.

Por último, los arquitectos señalan que está en marcha la regeneración ambiental a través del diseño del paisaje exterior con plantas nativas buscando recuperar la flora autóctona y su fauna asociada, afectada por la deforestación y el crecimiento urbano.
Ficha técnica
- Arquitectos: Sebastián Miranda / Julián Ierace
- Superficie: 100 m2 cubiertos y 60 m2 semicubiertos
- Año: 2023
- Fotografías: Arq. Sebastián Miranda

Surgió como una vivienda de fin de semana para una pareja que requería una propuesta simple, de bajo costo, superficie reducida y en equilibrio con su entorno. E}l resultado está a la vista y les gustó tanto que pasan la mayor parte de los días allí. La pensaron y la construyeron los arquitectos Julián Ierace y Sebastián Miranda. No son socios: cada uno tiene su estudio pero suelen compartir proyectos. Ambos docentes de la Universidad Nacional de La Plata, coinciden en el método a la hora de planificar una obra: desarrollo teórico, investigación y soluciones constructivas sustentables. De esa usina de ideas nació la de esta casa emplazada en una zona rural del partido de Brandsen, provincia de Buenos Aires, junto al cauce del arroyo San Luis, en un entorno típico de la llanura pampeana.
Registrate gratis
Disfrutá de nuestros contenidos y entretenimiento
Suscribite por $1500 ¿Ya estás suscripto? Ingresá ahora
Comentarios
Estimados/as lectores de Río Negro estamos trabajando en un módulo de comentarios propio. En breve estará habilitada la opción de comentar en notas nuevamente. Mientras tanto, te dejamos espacio para que puedas hacernos llegar tu comentario.
Gracias y disculpas por las molestias.
Comentar