Así será el hospital modular de Bariloche
El espacio estará ubicado en la zona oeste de la ciudad y tendrá una ambulancia a disposición. Conocí qué servicios tendrá
Bariloche tendrá el próximo verano uno de los hospitales modulares diseñados por el Gobierno nacional para reforzar la asistencia sanitaria en los destinos turísticos ante la pandemia del coronavirus.
Se trata de un prototipo similar, con una estructura de construcción seca, que se instalará en los 18 puntos del país seleccionados, entre ellos en Bariloche y Las Grutas, las dos ciudades turísticas por excelencia del verano patagónico.
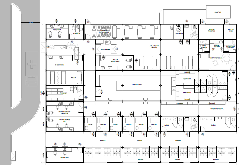
Tendrá una superficie de 655 metros cuadrados con boxes de testeos de covid-19, aislamiento, sala de espera, sector de monitoreo, “shock room”, laboratorio, sanitarios y área administrativa.

Según indicó el Gobierno nacional, cada hospital modular será equipado además con una ambulancia para traslados y derivaciones.
En Bariloche estará ubicado en el cruce de avenida de los Pioneros y ruta 82, en la zona Oeste, en un terreno municipal.
El hospital modular en esa zona llega además a suplir una antigua demanda de las juntas vecinales del Oeste que reclaman centros de salud aunque en este caso estará dedicado exclusivamente a atender la demanda ocasionada por la pandemia del coronavirus.
Bariloche tendrá el próximo verano uno de los hospitales modulares diseñados por el Gobierno nacional para reforzar la asistencia sanitaria en los destinos turísticos ante la pandemia del coronavirus.
Registrate gratis
Disfrutá de nuestros contenidos y entretenimiento
Suscribite por $1500 ¿Ya estás suscripto? Ingresá ahora
Comentarios