El río y la laguna son partes esenciales de esta casa, en Roca
En medio de un imponente paisaje con una presencia constante del río y la laguna, esta casa construida en Roca se concibe como una sucesión de espacios interiores protegidos y confortables para contemplar el exterior, teniendo en cuenta los vientos típicos de la zona. La obra es el estudio GUG Arquitectos, de Roca.
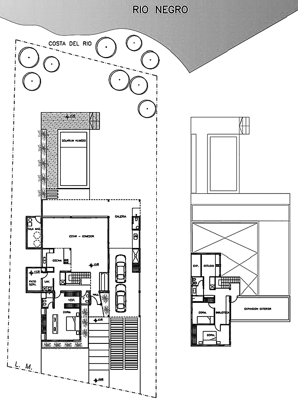
Por normativa debía elevarse la vivienda con respecto al nivel del rio, por lo tanto el patio de servicio y sala de maquinas se plantearon en ese desnivel, asi como también una bodega para el guardado de vinos y quesos.

La vivienda se desarrola en dos plantas, destinando en PB un gran loft social y dormitorio ppal y en PA el resto de las habitaciones, estudio y terraza hacia la laguna.

“Para acercarnos a una arquitectura sustentable -teniendo en cuanta la orientación- se planteó para la fachada que da al oeste un volumen cerrado de piedra que nos guía hacia el acceso principal y un cerramiento de tubos metálicos que minimiza una apariencia masiva y genera un juego de luces y sombras además de circulaciones cruzadas de ventilación”, afirman los profesionales de GUG.

La idea de partido surge priorizando los espacios exteriores que absorben las formas, colores y vegetaciones características del desierto patagónico en contraste con la belleza natural del rio negro: muros vidriados protegidos por amplias galerías dan un limite virtual permitiendo que la piscina se lea como nexo entre la vivienda y el rio.

El uso de los materiales utilizados pretenden siempre integrar el interior y exterior ya sea en muros de madera entre estar – galería o muro perforado metálico y vanos amplios. Se utilizó tierra granítica drenante de la zona y canto rodado grande extraído del mismo lugar en la conformación del deck entre pileta y galería y bajo escalera interior.

La arquitectura, los interiores y los jardines buscan acercar la belleza del paisaje cirundante a los ambientes despejados y sencillos planteados. “Es decir, el marco físico deja de ser un escenario para transformarse en parte activa de la vivienda por medio de la búsqueda constante de visuales que trascienden el límite de la misma”, afirman desde GUG Arquitectos, estudio -ubicado en Roca con sucursal en Neuquén- que tiene obras en todo el Alto Valle.

Los arquitectos
Arq. Gargini, Sandra Elide
Arq. Gallo, Santiago Julio
Arq. Uez, Rodolfo Agustín
Arq. Gallo, Josefina María
Lic. Gallo, Joaquín Sebastián
Dirección técnica: Ingeniero Calixto Ortega

La pileta ejerce también una función de nexo entre la casa y el río Negro. Este concepto se traslada a toda la vivienda, donde a través de las visuales el paisaje va más allá de ser un mero escenario.
Datos
- La pileta ejerce también una función de nexo entre la casa y el río Negro. Este concepto se traslada a toda la vivienda, donde a través de las visuales el paisaje va más allá de ser un mero escenario.
Registrate gratis
Disfrutá de nuestros contenidos y entretenimiento
Suscribite por $1500 ¿Ya estás suscripto? Ingresá ahora