«El Chocón era Disney»: una casa construida para rendir homenaje a las primeras de la villa
Una pareja dejó su departamento en Buenos Aires para vivir de cara al lago a 80 km de Neuquén capital. La vivienda ofrece en el techo inclinado y las lucarnas que dejan entrar la luz natural guiños inconfundibles a las antiguas casas habitadas por quienes llegaron en los 70 al norte de la Patagonia para trabajar en la represa, conocida por entonces como la obra del siglo. El arquitecto Rodrigo De Marchi, nacido en la villa, cuenta las claves del proyecto y la historia detrás.

Cuando conocieron El Chocón, decidieron comprar un terreno y construir un quincho para poder viajar en las vacaciones desde Buenos Aires a esa villa a 80 kilómetros de Neuquén capital. Ese lote en un barrio abierto sobre la costa del embalse Ramos Mexía y sus tonos azules aparecía como una tentación.
Las aguas del Limay contenidas por el enorme muro de la central hidroeléctrica le daban vida a ese lago que podía ser artificial y sin embargo se veían tan lindo, como tan real el encanto agreste que lo rodeaba, las formaciones rocosas que emergían, las huellas de los dinosaurios y el circuito histórico que recorría las viviendas de los empleados de la represa que llegaron a comienzos de los ‘70 a ese punto árido del norte de la Patagonia, habitado por entonces por crianceros con sus cabras y ovejas donde de repente todo cambió a orillas del río.



De Buenos Aires a El Chocón
El tiempo pasó y en la pandemia aquella pareja ya jubilada se preguntó qué hacía encerrada en un departamento en Buenos Aires. Y entonces, la decisión: apenas fuera posible, tirarían abajo el quincho y levantarían la casa donde vivirían después.



Para eso contactaron al estudio de arquitectos neuquinos De Marchi Salcedo. De Marchi es Rodrigo. Conocía bien la zona bien: había nacido en el Chocón.
El resultado fue inevitable: una casa que encontró la manera de rendir homenaje a las primeras de la villa.
Destino El Chocón
El padre y la madre del arquitecto habían llegado a El Chocón desde Necochea, como parte de esa oleada que trajo más de cinco mil habitantes donde antes vivía un puñado de puesteros solitarios esparcidos en los campos.
Con el tiempo las viviendas transitorias se volvieron permanentes, se construyeron la escuela, el centro comercial, el cine, la cancha de fútbol, la de básquet y el hospital donde nació Rodrigo en 1975. Cinco años antes, la villa había sido escenario de un formidable movimiento popular que se conoció como el Choconazo, en reclamo de sustanciales mejoras en las condiciones laborales (salarios, seguridad, alojamiento) para los trabajadores que hicieron la represa, que puso a Neuquén en el centro de la atención nacional.
Y si El Chocón entraría después en la historia como la obra del siglo con su colosal muro de 2,5 km de largo, 400 metros de ancho en la base, 86 metros de altura y las turbinas que se conectaron con su aporte clave al sistema energético nacional, al futuro arquitecto era otra cosa lo que le impresionaba: la villa.
Recuerda el impacto de ver una ciudad consolidada, con espacios públicos, con calles asfaltadas iluminadas, polideportivo, pileta, centro comercial.


“Era como un mundo de fantasía la villa en esa época, en contraste con todo lo que pasaba en el resto del Valle. Cuando nos fuimos a vivir a Neuquén y a Plottier, el contraste era increíble cada vez que volvíamos. Y para mí era como ir a Disney, porque era todo fantástico”, relata.
Luego, en la Universidad Nacional de La Plata, con Federico Salcedo y su hermano Emiliano (también socio del estudio) supieron de la importancia arquitectónica que había tenido ese desarrollo. El proyecto fue del estudio Urgell, Penedo, Urgell. Uno de ellos era su profesor en la UNLP y lo admiraban,
Les resultó apasionante sumergirse en lo que planificaron hacer. Así lo contaban en el comienzo de la memoria descriptiva en 1968: “Sobre una de las mesetas del valle del Río Limay, a 80 mts. de éste, se seleccionó una olla natural protegida de los vientos, con una pendiente del 8%, frente al futuro embalse. El programa incluía 200 viviendas en lotes de 400 metros, un centro de actividades cívicas (iglesia, hostería, escuela, etc.) y una superficie de 40.001 m2.


“Establecer una localización humana completa planteó interrogantes como el grado de densidad, ya que la naturaleza hostil llevaba a pensar en una alta concentración a los efectos de reducir circulaciones. También era importante considerar el cambio que introducía el lago en la geografía y en el clima”, explicaban también.
“La reducida población –200 familias – y el aislamiento de la zona acentuaban la necesidad de dar privacidad a los pobladores, relacionados permanentemente por su trabajo. Se proyectaron sectores de viviendas un tanto aisladas, en lotes de 400 m2, con los frentes principales abiertos a la red peatonal y los contrafrentes a la red vehicular a través de un jardín privado”, agregaban.
“Lo estudiamos desde el cariño y la fascinación por ese lugar, algo que todavía me sigue pasando”, dice hoy el arquitecto De Marchi. Ese es el escenario y esa es la historia detrás de este proyecto.
El proyecto
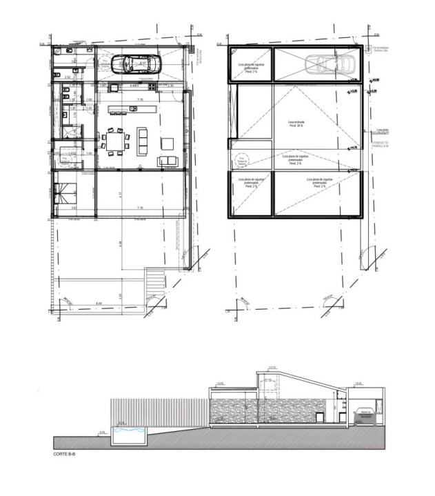
Ahora la memoria descriptiva es del 2021 y señala que la vivienda en un lote lindante al barrio original de la pareja que se mudó desde Buenos Aires a El Chocón se desarrolla principalmente en una sola planta, con una organización funcional clara que diferencia áreas sociales, privadas y de servicio.

“La casa está en una esquina, en un lote frente a una plaza. Ahí tenían el quincho que con mi familia alquilamos varios años para ir a pasar unos días de vacaciones”, cuenta el arquitecto.

Cuando le pidieron demolerla para construir una vivienda permanente, el estudio se decantó por una casa de un dormitorio, con un gran espacio social, todo con vista al lago.
La implantación responde a la topografía del terreno: resolvieron el desafío de los desniveles mediante plataformas y muros de contención.
El proyecto se abre hacia el jardín y las visuales, generando expansiones exteriores vinculadas al estar-comedor y al área de la piscina.

El acceso conduce a un espacio social integrado de estar, comedor y cocina, con amplias superficies vidriadas que aseguran iluminación natural y relación directa con el exterior.
El sector privado se dispone de manera más reservada, para garantizar intimidad. Los locales húmedos y de servicio se agrupan para optimizar las instalaciones.
$ 1.700.000
- entre esa suma y $ 2.000.000 es el costo actual del metro cuadrado de una obra de estas características, de acuerdo con la estimación del estudio.
El sistema constructivo
Se resuelve con estructura de hormigón armado, losas planas y muros de hormigón visto.
Las carpinterías son de piso a techo, con paños fijos y corredizos. La materialidad exterior e interior combina hormigón visto, piedra natural y metal.

En el interior se utilizan pisos símil madera e iluminación empotrada. La imagen arquitectónica se define por volúmenes horizontales, líneas simples y una expresión contemporánea.

El guiño arquitectónico a las viviendas pioneras se expresa sobre todo en dos elementos: la inclinación de los techos y las lucarnas que dejan entrar la luz natural a través de los cristales y generan sensación de amplitud, la impresión de que los ambientes son más grandes.
Rescate emotivo
“El eje de composición de la vivienda tiene que ver con ese guiño a las construcciones de la villa. En algún punto la casa tiene semejanzas desde lo formal, con los techos y las lucarnas, como una especie de homenaje a la villa, que nos encanta en el estudio, nos parece una obra increíble. Y como nací ahí también era todo un desafío”, dice el arquitecto.

Por la falta de mano de obra de entonces, la cuadrilla viajó desde Neuquén y se instaló allí. Y los materiales provinieron de la zona. El criterio central: reducir al máximo el mantenimiento.

“Por eso mucha piedra en los muros, el zócalo mural y el resto de la estructura de hormigón visto, en las vigas, en los techos, en los laterales y una cocina integrada al estar-comedor. Y dejamos el patio hacia adelante, donde está la pileta. Ese mismo patio miraba a la plaza y desde la plaza al lago, para garantizar que desde los lugares más sociales de la vivienda uno pudiera contemplar el lago. Ese era el criterio. Y protegerlo del asoleamiento del norte: toda la casa está orientada al sur”, explica Rodrigo, el arquitecto que supo volver con esta obra a la villa donde dio sus primeros pasos.
Ficha Técnica
- Ubicación: Villa el Chocón, Neuquén, Patagonia, Argentina
- Proyecto: DMS Arquitectos & Asoc
- Área: 160 m²
- Año: 2021
- Duración de la obra: 12 meses
- Sistema constructivo: tradicional
- Dirección de obra: Arq Rodrigo De Marchi
- Administración de obra y diseño en terminaciones: Arq Laura Pailaman, Arq David Cetrar
- Constructor: DMS Arquitectos & Asoc
- Fotografías: Maju Franzán
Sobre el estudio

- El arquitecto Rodrigo De Marchi se recibió en la Universidad Nacional de La Plata (UNLP) en el 2004 junto a Federico Salcedo.
- Ambos abrirían ese año un estudio en la ciudad de Neuquén, al que luego se sumarían los arquitectos Emiliano De Marchi (UNLP), hermano de Rodrigo, y Laura Pailaman (UNC).
- El estudio ha desarrollado proyectos unifamiliares, multifamiliares, hoteles y centros de salud. Ha recibido distinciones de la Federación Argentina de Entidades de Arquitectos.
- Contacto: demarchisalcedo.com.ar

Cuando conocieron El Chocón, decidieron comprar un terreno y construir un quincho para poder viajar en las vacaciones desde Buenos Aires a esa villa a 80 kilómetros de Neuquén capital. Ese lote en un barrio abierto sobre la costa del embalse Ramos Mexía y sus tonos azules aparecía como una tentación.
Las aguas del Limay contenidas por el enorme muro de la central hidroeléctrica le daban vida a ese lago que podía ser artificial y sin embargo se veían tan lindo, como tan real el encanto agreste que lo rodeaba, las formaciones rocosas que emergían, las huellas de los dinosaurios y el circuito histórico que recorría las viviendas de los empleados de la represa que llegaron a comienzos de los ‘70 a ese punto árido del norte de la Patagonia, habitado por entonces por crianceros con sus cabras y ovejas donde de repente todo cambió a orillas del río.
Registrate gratis
Disfrutá de nuestros contenidos y entretenimiento
Suscribite por $1500 ¿Ya estás suscripto? Ingresá ahora
Comentarios
Estimados/as lectores de Río Negro estamos trabajando en un módulo de comentarios propio. En breve estará habilitada la opción de comentar en notas nuevamente. Mientras tanto, te dejamos espacio para que puedas hacernos llegar tu comentario.
Gracias y disculpas por las molestias.
Comentar