Mirá esta ampliación de una casa de plan entre medianeras
La reducida planta de una unidad de viviendas sociales fue ampliada hasta triplicar la superficie original gracias a un diseño que logró superar los obstáculos del techo inclinado y las medianeras.
El proyecto trata de la ampliación de una casa de interés social, de planta básica, con la dificultad añadida de techos inclinados, donde crecer hacia arriba parecía difícil y costoso.
La prioridad en este proyecto además de ampliar las áreas era dotar a la vivienda de una imagen distinta con economía de medios.
El mayor desafío
La propuesta se basa en no eliminar el techo inclinado y sobreponer la ampliación, estableciendo el nivel de piso de planta alta en la cumbrera de la losa inclinada por lo que el juego de escalones en planta alta resultaba indispensable.

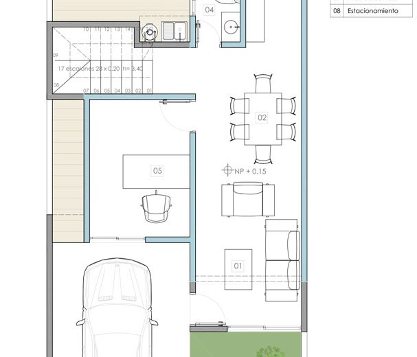
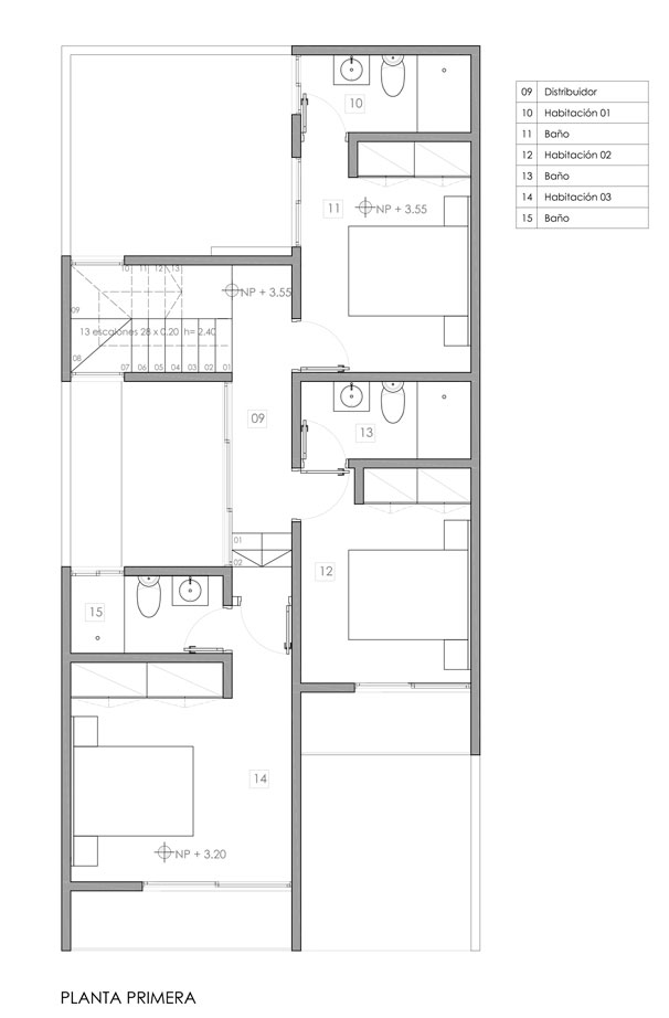
En planta baja la ampliación se limita al cubo de escalera y a la zona de cocina, en el estar comedor se establecieron grandes ventanas para una mejor iluminación y ventilación cruzada de aire. En planta alta se plantean 3 habitaciones con baño completo cada una, estableciendo así un aumento del 200% de la vivienda original.
La expansión
- 170 m2
- se añadieron a la vivienda con esta importante expansión que significó un 200% de aumento a la superficie original.
En planta tercera se rescata el uso de la cubierta que además de crear un claro acceso al área de equipos, ayuda a crecer el área de tendido.
La fachada
El juego de volúmenes en fachada se reconfigura por la colocación de las habitaciones en planta alta; la habitación principal se convierte en el volumen dominante, que además de techar el garaje determina el volumen en primer plano en fachada.
La materialidad en cuanto a los acabados se basa en muros revocados y juego de macizos en colores claros y obscuros con cerámica imitación madera, otorgando a la fachada un juego de vanos y macizos proporcionados.
La ampliación de la casa es un ejemplo de que con economía de medios se puede dar una nueva imagen a la llamada casa de «interés social», que no por económica deba ser anodina.
Publicado por: www.arquimaster.com.ar
El proyecto trata de la ampliación de una casa de interés social, de planta básica, con la dificultad añadida de techos inclinados, donde crecer hacia arriba parecía difícil y costoso.
Registrate gratis
Disfrutá de nuestros contenidos y entretenimiento
Suscribite por $1500 ¿Ya estás suscripto? Ingresá ahora