La pileta increíble de esta casa que diseñó Andrés Remy: invita al relax total

El entorno natural era todo un capital que el arquitecto debió enfocar como prioridad del proyecto. Es así que en plena ciudad, con construcciones en los alrededores, los propietarios lograron conseguir un oasis envidiable.

Redacción

Por Redacción

“Este proyecto significó un gran desafío para el estudio porque fue el primer encargo residencial emplazado en plena ciudad. El lote de 18 x 26 ubicado en Devoto posee construcciones vecinas que se presentaban amenazantes en cuanto a asoleamiento y vistas se refiere”, comenta el arquitecto Andrés Remy a “Río Negro”.

La pileta de la casa que el estudio de arquitectura de Andrés Remy diseñó tiempo atrás.


Por esta razón el planteo se apoya en las construcciones vecinas existentes, dándoles la espalda, en una postura introspectiva donde las vistas y el paisaje se generan en el propio interior del lote y no hacia afuera. Una arquitectura que supo generar su propio paisaje. De esta manera se logró resolver la premisa de las visuales y el asoleamiento en el jardín, una preocupación planteada por los clientes desde un primer momento.
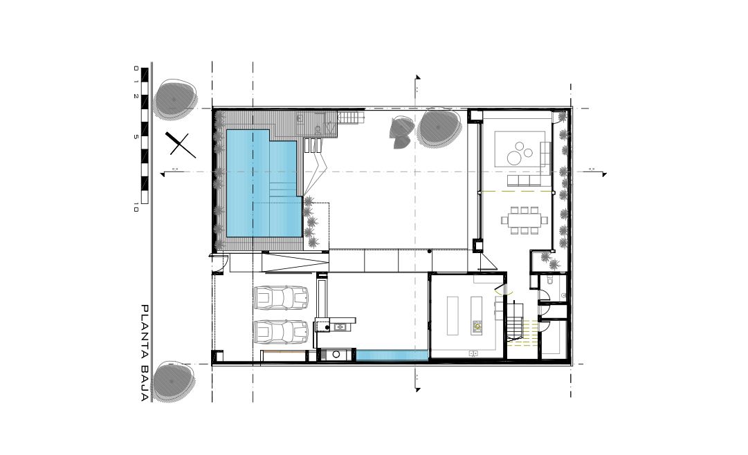
La casa de 500 m2 concebida para una pareja joven con hijos se tornaba muy grande respecto de la superficie del terreno, peligrando así el espacio libre destinado a jardín. Por dicha razón optaron por dejar la menor cantidad de funciones en planta baja, liberando así la mayor cantidad de terreno posible. Una pisada poco pretenciosa que prioriza los espacios exteriores por sobre los interiores.


El living comedor y la cocina volcados hacia el fondo del lote desestructuran y se contraponen al planteo más convencional de una vivienda urbana, donde el jardín aparece al fondo. En esta casa el planteo se invierte y el gran recibidor es ahora la naturaleza. Ni bien cruzamos el umbral de la calle un muro de piedra San Luis acompaña continuándose hasta el interior, en un recorrido bañado por los distintos tonos que dibuja el agua al caer. Un muro con funciones que se suceden dotando al espacio de una calidez única.


El fuelle verde entre el living y la medianera del fondo recibe al ingresar a la vivienda y propone un espacio pasante, rodeado de verde y con la vivacidad de los reflejos del sol, que recuerda que allí el protagonista es el afuera.


En esta obra se hizo un detallado estudio de la incidencia solar, sobre todo a la hora de decidir la ubicación de la pileta. Una vez más, el agua toma un fuerte protagonismo dentro de la obra. Esta vez se deja ver a través de una pared de vidrio que se abre en la pileta a modo de ventana y que permite ver qué ocurre detrás. De esta manera podemos contemplarla desde cualquier punto de la casa, configurándose como un nuevo punto focal.

Se optó elevar la pileta evitando que el muro de frente genere sombra sobre la misma. Sobre ella aparece flotando el volumen de la suite.

La casa se eleva en forma escalonada. Los dormitorios ubicados en el primer piso están orientados al este y miran hacia el corazón de la casa, el jardín. En la última planta se decidió ubicar un spa con jacuzzi, sauna y gimnasio y una terraza al exterior.

Ficha técnica de la obra:

Proyecto: Andres Remy Arquitectos.
Equipo de Diseño: Andrés Remy, Carlos Arellano, Hernán Pardillos, Julieta Rafel, Lilian Kandus.
Diseño Interior: Andrés Remy, Julieta Rafel, Diego Siddi, Martin Dellatorre.
Fotos: Alejandro Peral

Superficie: 550m²
Ubicación: Villa Devoto, CABA.


“Este proyecto significó un gran desafío para el estudio porque fue el primer encargo residencial emplazado en plena ciudad. El lote de 18 x 26 ubicado en Devoto posee construcciones vecinas que se presentaban amenazantes en cuanto a asoleamiento y vistas se refiere”, comenta el arquitecto Andrés Remy a “Río Negro”.

Registrate gratis

Disfrutá de nuestros contenidos y entretenimiento

Suscribite por $1500 ¿Ya estás suscripto? Ingresá ahora